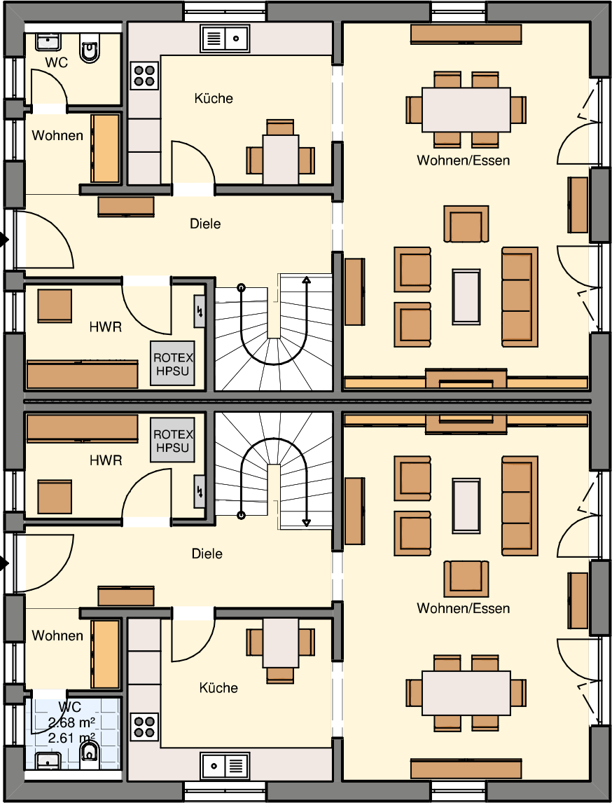
- Grundrisse
- Ausstattung Allinklusiv
- Bauherrenschutzbrief
- Mögliche Zusatzleistungen
Massiv gebaut
Doppelhaus Werder (127 m² je Haushälfte)
In KfW 55 und KfW 40 erhältlich!*
Hauspreis schlüsselfertig
inklusive PV-Anlage
309.990,- EUR
Massiv gebaut
EWA - Allinklusiv
- a= 127 m² Wohn- Nutzfläche je Haushälfte
- Außenmaße: 11,00m x 7,25m
- Walmdach 24°
- Klima-Außenmauerwerk 36,5cm
- Gebaut nach aktuell gültigem GEG
- Wärmepumpe (Heizen u. Kühlen in einem System)
- Klima-Fußbodenheizung
- PV-Anlage zur Stromerzeugung
- Klimaschutzfenster, 3-Scheibenverglasung, Profile Farbe: weiß
- Innenwände gemauert
- Erdarbeiten, Bodenplatte u. Frostschürze
- Tondachziegel in verschiedenen Farben
- Individuelle Planung nach Bauherrenwunsch
- Grundrissänderungen sind möglich
- Architektenleistung u. Bauantragserstellung
- Hauseingangstür mit Glaseinsatz, Farbe: weiß
- Rollladen EG u. OG
- Natursteinfensterbänke: außen Granit, innen Marmor
- Fliesen: Bad u. G-WC
- Bodengleiche Dusche u. Körperformbadewanne
- Frostsicherer Außenwasserhahn
- Farbiger Hausputz
- Sockelputz umlaufend
Hauspreis schlüsselfertig
Das gibt es bei uns inklusive!
Planung, Bauantrag, Statik & Wärmeschutzerstellung
Erdarbeiten, Bodenplatte mit Frostschürzen, Fundamenterder
Erstellung Baugrundgutachten für die Standsicherheit
36,5cm Mauerwerk, Stahlbetondecke, Innenwände gemauert
Sicherheitsfenster Kl. 6, Natursteinfensterbänke, Rollläden aus Alu
Tondachziegel engobiert & edelengobiert
Außenputz farbig oder weiß, Sockelputz als Buntsteinputz
Wärmepumpe mit Fußbodenheizung
PV-Anlage zur Stromerzeugung
moderne freitragende formschöne Innentreppe
Fliesenarbeiten Bad & WC, moderne Sanitärausstattung
Bauherrenschutzbrief mit allen RUND UM Versicherungen
Bauüberwachung durch Sachverständigen
... und vieles mehr.
Auch in KfW 40 erhältlich!*
(schlüsselfertig, ohne Maler- u. Bodenbelagsarbeiten)
Die Preise sind inkl. gültiger MwSt. ausgewiesen! Hausbild zeigt Sonderwünsche!
Sie haben weitere Fragen? Bitte sprechen Sie uns direkt an!
Hauspreis als Ausbauhaus
Das gibt es bei uns inklusive!
Planung, Statik- & Wärmeschutzberechung, Bauantragserstellung
Erdarbeiten, Bodenplatte mit Frostschürzen & Fundamenterder
36,5cm Mauerwerk, Stahlbetondecke, Innenwände gemauert
Sicherheitsfenster Kl. 6, Natursteinfensterbänke, Rollläden aus Alu
Tondachziegel engobiert oder edelengobiert
Außenputz farbig oder weiß, inkl. Sockelputz als Buntsteinputz
Bauherrenschutzbrief - Das RUND UM Versicherungspaket für Bauherren
Baugrundgutachten, Baustelleneinrichtung mit Bautoilette, Baugerüst ...
Bauüberwachung mit Sachverständigen
... und vieles mehr.
Zusatz-Bauleistungen gleich mit buchen!*
Wir unterstützen Sie beim Innenausbau, Einzelgewerke mit Bauleiterüberprüfung jetzt dazu buchen!
Monolithische
Bauweise
Monolithisch Bauen heißt, Gebäude auf traditionelle Weise mit einschaligen Mauerwerk zu errichten. Bauherren können dadurch auf ein Wärmeverbundsystem mit aufwendiger Systemtechnik (Lüftungsanlagen) verzichten. Sie profitieren von Bestwerten in Sachen Nachhaltigkeit, Kälte und Hitzeschutz, Schall- und Brandschutz. Die Außenwand ist der wichtigste Baustein an einem Wohnhaus.



